2024 Beverly PDE, Maldonado, Uruguay
Ampliación
Reforma
Residencial
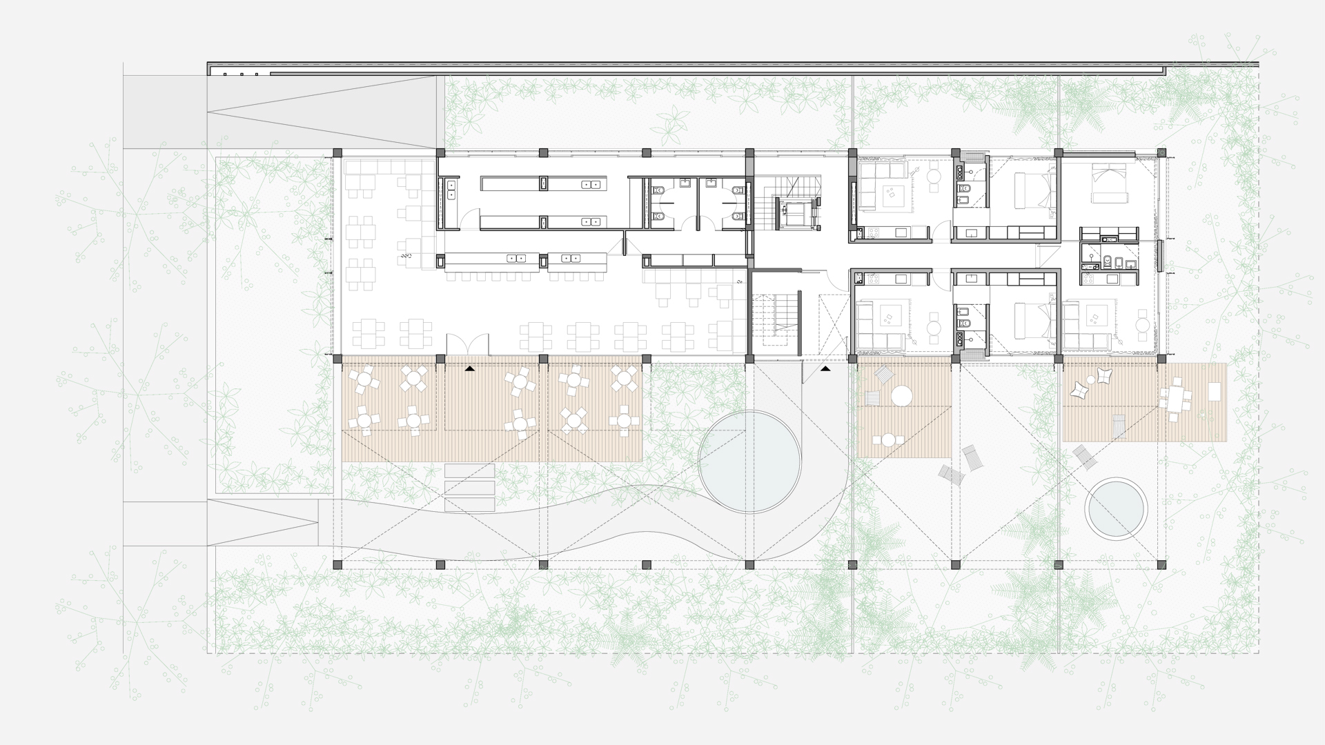
La propuesta plantea la reactivación de un edificio que funcionó como Club y Spa, el cual brindaba servicios de recreación y esparcimiento a una torre de viviendas, frente a la playa Mansa en Punta del Este.
La estructura existente se reformula de un modo flexible para alojar viviendas de temporada y permanentes, manteniendo la morfología del edificio original.



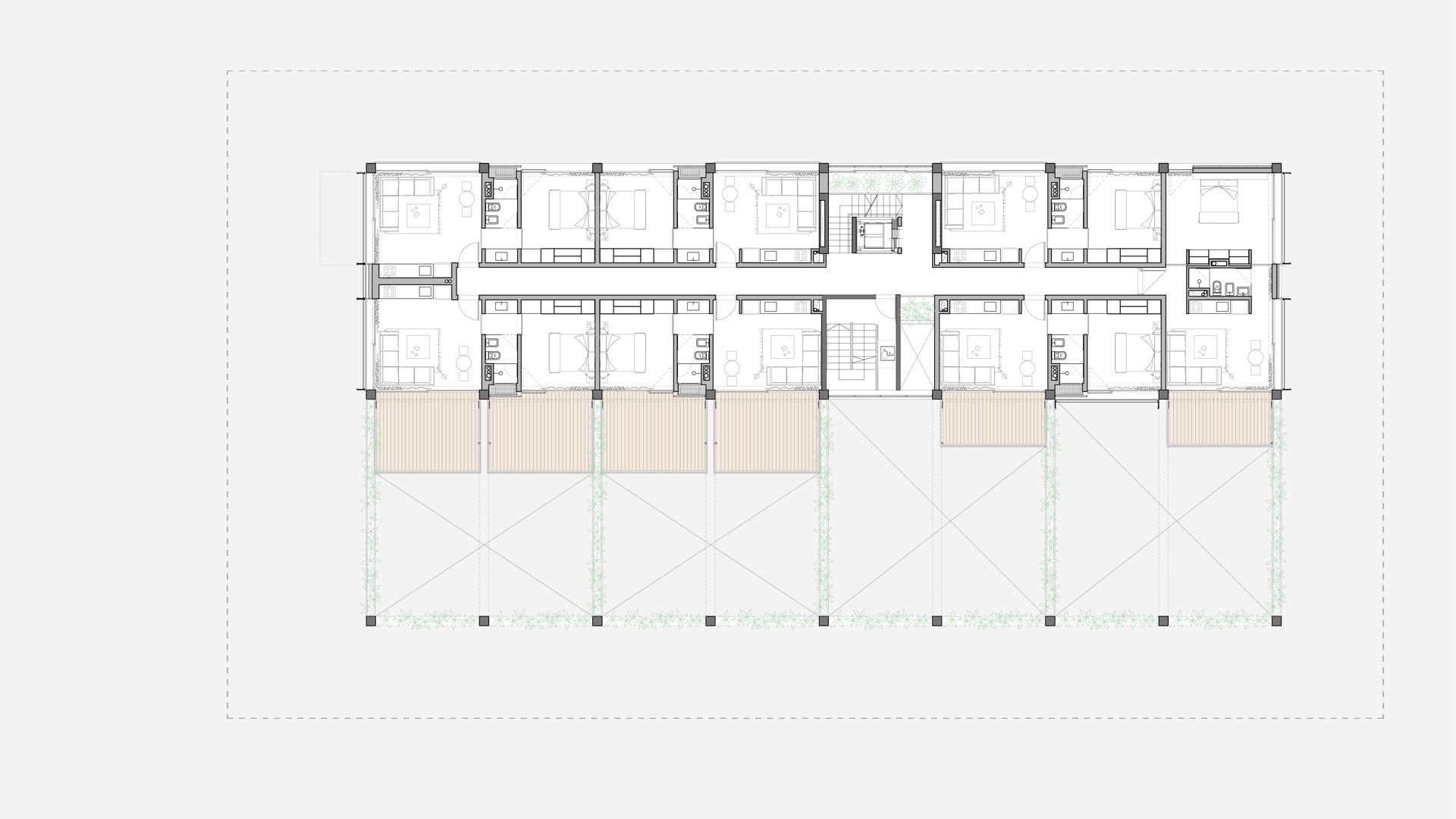
Sobre la estructura original del edificio se plantea la ampliación de dos nuevos niveles que serán destinados a vivienda, siguiendo los lineamientos morfológicos y estéticos de la preexistencia, materializándose en un volumen marcado por una cuadrícula de vigas y pilares metálicos que se integran armoniosamente a la estructura existente.




En Planta Baja sobre la fachada principal y lateral norte, aprovechando y reconvirtiendo las instalaciones de la cafetería preexistente del programa original, se plantea mantener un local gastronómico que se abre a la calle y a la gran pérgola lateral en cuádruple altura.


Esta estructura pergolada, es un rasgo característico del edificio original el cual proponemos mantener y potenciar en su uso. La gran pérgola, formada por la simple repetición de vigas y pilares a una escala un tanto monumental, genera un contrapunto que iguala el volumen construido del edificio a un idéntico volumen pero vacío, gesto que nos integra al entorno inmediato de la inmensa escala de las torres vecinas.
Proponemos acondicionar este espacio exterior con una serie de elementos vegetales con una intervención mínima, los cuales funcionarán como amortiguador natural de la incidencia solar de la orientación norte sobre gran parte del edificio.




Se tuvo especial cuidado en el diseño del nivel de azotea donde se ubicará bajo el área del tanque de agua, un espacio para el gimnasio, servicios higiénicos y un pequeño lavadero común. Las terrazas contiguas a este volumen serán enjardinadas y se ubicaran dos grandes decks exteriores, equipados con parrilleros, pérgolas totalmente abiertas y acondicionadas con toldos retractiles.
De este modo la azotea servirá a modo de Rooftop como área de esparcimiento y disfrute para los ocupantes del edificio mientras que generará un cuidado marco estético para las vistas de los edificios vecinos.




El proyecto prevé un máximo de 38 unidades de vivienda de 1 dormitorio, pudiendo variar en menor medida si el programa brindara opciones de 2 o 3 dormitorios o unidades dúplex.



Coordinación general y proyecto: Arq. Nicolás Guerra y Arq. Fernando De Rossa
Equipo de Proyecto: Arq. Gabriela Alvarez, Arq. Claudia Curbelo
Renders: Vulk